Quando a família aumenta, a melhor opção é construir um sobrado. Um projeto de sobrado com 4 quartos é ideal para uma família grande, principalmente por oferecer quartos e banheiros adequados para o tamanho da família. Algumas plantas e idéias podem ser obtidas gratuitamente na internet. Selecionamos algumas opções do portal Monte Sua Casa para incentivar a sua construção.
Imagens de plantas de sobrados com 4 quartos

A fachada de um sobrado com quatro dormitórios pode conter uma varanda, que é sempre um detalhe que valoriza ainda mais o imóvel. Para dar um ar moderno a fachada escolha a colocação de canjiquinha em uma parte da parede. A fachada da imagem é uma sugestão para quem possui um terreno de esquina.

A fachada de um sobrado com quatro dormitórios pode conter uma varanda, que é sempre um detalhe que valoriza ainda mais o imóvel. Para dar um ar moderno a fachada, escolha a colocação de canjiquinha em uma parte da parede. A fachada da imagem é uma sugestão para quem possui um terreno de esquina.

Outra fachada para inspirar a sua construção. Nessa residência a piscina fica na parte frontal e a casa construída aos fundos, com garagem ao lado. As janelas e telhados dão um ar moderno à construção.

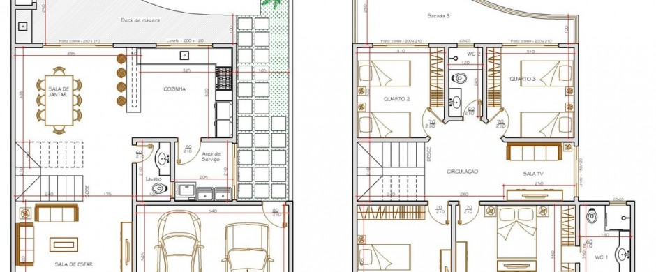
O projeto dessa residência é composto por quatro dormitórios, sendo três na parte superior e um na inferior, que pode ser utilizado como quarto de hóspede. O grande diferencial é a suíte master, que tem um projeto de closet e de sacada.

Para quem gosta de projetos grandes, essa planta é ideal. A cozinha é estilo americana e fica próximo a sala de jantar, mantendo os ambientes integrados. (Veja também imagens de Plantas de casas com 3 quartos e 2 banheiros grátis.)
Gostei do primeiro sobrado de 4 q quero construí um igual queria saber se posso contar vcs desse projeto eu pago o projeto como faço pra entrar em contato com vocês obrigado
gostei do projeto do sobrado de 4 quarto na parte superior como faço pra ter o projeto completo .obrigado