Está em busca de idéias e sugestões de projetos para construir um comércio ou uma residência? Veja algumas imagens que podem servir como inspiração para iniciar a sua obra.
Imagens de plantas e fachadas de comércio e residência em um mesmo imóvel

A fachada de um pequeno escritório construído em 36 m2. A fachada é simples e moderna, serve tanto para escritório como para uma loja pequena.

No local existe a sala principal do escritório onde é possível inserir até duas mesas amplas. Nos fundos é possível fazer um pequeno jardim. Ainda na parte interna é possível construir um lavabo para clientes e funcionários, uma copa e a garagem.

A fachada grande para um comércio maior. Moderno e contemporâneo, o estilo dessa fachada é recomendado para quem deseja dar um ar moderno aos seus negócios. Foi utilizada uma pintura clara nas paredes externa.

A planta é composta por um pavimento superior, onde é possível estabelecer a sala da diretoria e uma sala para os funcionários. Na parte inferior, encontramos a recepção, uma sala, a cozinha, dois banheiros e uma área de serviço.

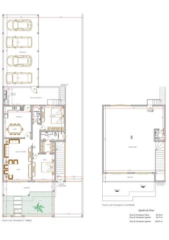
Para quem deseja ter o seu próprio negócio e a sua residência em um mesmo imóvel, a dica é construir um sobrado e deixar a parte inferior para o comércio e a superior para uma residência.

Essa planta é uma sugestão do que é possível construir. O espaço ficou amplo e foi possível inserir uma garagem com capacidade para até 4 veículos. (Veja outras idéias de projetos de residência).